TROY - single family house

TROY 단독주택

G-3

troy

G-3

troy

G-3

troy

troy

G-3

troy

1F Plan

1F Plan

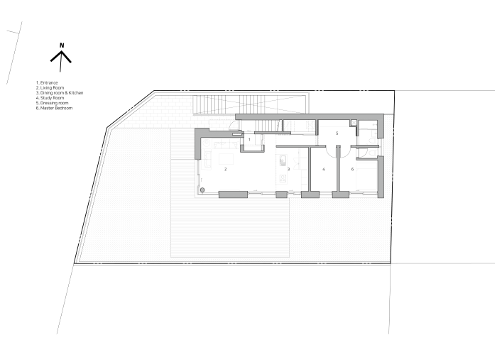
2F Plan

2F Plan

3F plan

3F plan

TROY - single family house

위치: 경기도 고양시 일산동구 풍동 애니아트힐즈

용도: 단독주택 (다가구)

규모: 지하1층 / 지상3층

연면적: 210.84 ㎡

설계: 쿠오타디자인건축사사무소

Previous
Previous

Gajeong 1-Dong Community Center

Next
Next

The Anchor Facility for Yangjae R&D Innovation Hub / Design Competition